Dom Żywiec Centrum, Rynek
Żywiec Pokaż na mapie ›
Dodane: Wtorek, 21 Październik, 2025 12:11
4 800 000 zł
10191 zł/m2
Szczegóły ogłoszenia
- Kategoria: Domy / Sprzedaż
- Powierzchnia:471 m2
- Pow. działki:155 m2
- Rynek:Wtórny
- Rok budowy:1888
- Sprzedaż:Pośrednik
- Cena: 4 800 000 zł / 10191 zł/m2
Opis oferty
|*zdjęcia należą do właściciela oferty
NA SPRZEDAŻ KAMIENICA W RYNKU W ŻYWCU PO GENERALNYM REMONCIE W 2023 ROKU
LOKALIZACJA I OTOCZENIE NIERUCHOMOŚCI
Przedmiotowy budynek usytuowany jest w samym centrum miasta, przy płycie Rynku, pośród zwartej zabudowy mieszkalnej wielorodzinnej i usługowej.
Rynek w Żywcu charakteryzuje się zwartą zabudową kamienic, które powstały po wielkim pożarze w 1857 roku.
W pobliżu oprócz zabudowy mieszkalnej wielorodzinnej znajdują się punkty gastronomiczne, hotele, aparthotele, kluby, usługi, muzea, kościoły.
Nieruchomość znajduje się w odległości ok. 1 km od wjazdu na drogę wojewódzką nr 946, łączącą się z drogą ekspresową S1.
Najbliższe przystanki komunikacji miejskiej znajdują się w odległości ok. 300 m od nieruchomości. Dostęp do nieruchomości bezpośrednio z drogi.
Dojazd odbywa się drogą asfaltową. Położenie przedmiotowej nieruchomości jest bardzo dobre.
Budynek narożny z końca XIX wieku (1888 rok). Technologia tradycyjna- murowana.
Na przedmiotowych działkach posadowiona jest kamienica o funkcji mieszkalno - usługowej .Budynek zajmuje cały obszar działek.
Przedmiotowa nieruchomość położona jest w Żywcu pod adresem Rynek 7 . Żywiec Śródmieście to centralna dzielnica miasta Żywca, położona w Kotlinie Żywieckiej, nad rzekami Sołą i Koszarawą oraz Jeziorem Żywieckim. W Śródmieściu znajduje się Rynek, będący historycznym centrum miasta, oraz większość zabytków i ważnych instytucji publicznych.
Nieruchomość posiada bardzo dobry dostęp do sieci uzbrojenia terenu.
Do działki doprowadzony jest wodociąg, kanalizacja, energia elektryczna, ciepłociąg oraz sieć telekomunikacyjna.
− Budynek objęty ochroną konserwatorską, wpisany do Rejestru Zabytków
Kamienica składa się z :
Kondygnacja -1 - Piwnica gdzie mieści się wyposażona restauracja powierzchni użytkowej 106, 86 m2
Kondygnacja 1 - parter gdzie mieści się restauracja o powierzchni użytkowej 111,34 m2
Kondygnacja 2- pierwsze piętro gdzie mieści się lokal mieszkalny o powierzchni użytkowej 130,3 m2
Kondygnacja 3- drugie piętro gdzie mieści się lokal mieszkalny o powierzchni użytkowej 122,7 m2
Dostęp do lokalu na poziomie 0 zapewniają dwa niezależne wejścia - jedno prowadzące bezpośrednio do
restauracji, drugie do części mieszkalnej. Klatka schodowa prowadząca do tej części wykończona została w
naturalnym kamieniu i uzupełniona kutą, stalową balustradą.
Dzięki wysokiemu standardowi wykończenia, wyjątkowemu klimatowi i przemyślanemu układowi funkcjonalnemu,
lokal ten stanowi gotową do użytku przestrzeń gastronomiczną, bez konieczności przeprowadzania dodatkowych
prac adaptacyjnych. Jest to propozycja atrakcyjna zarówno pod względem estetycznym, jak i inwestycyjnym.
Lokal użytkowy- restauracja:
Lokal użytkowy przeznaczony pod działalność gastronomiczną obejmuje dwie kondygnacje - piwnicę oraz parter
(poziom 0) - i stanowi spójną, elegancką przestrzeń o ponadczasowym charakterze. Został zaprojektowany z
wyjątkową dbałością o detale, z wykorzystaniem materiałów najwyższej klasy, co przekłada się na wysoki poziom
estetyczny, funkcjonalny i technologiczny. Wnętrze harmonijnie łączy historię miejsca z aktualnymi wymaganiami
prowadzenia działalności gastronomicznej - uwzględnia nowoczesne systemy wentylacyjne, przemyślaną
technologię kuchenną oraz funkcjonalny układ przestrzenny.
Oświetlenie w całym lokalu zaprojektowano z użyciem produktów renomowanych marek: Aromas (Hiszpania),
AQUFORM i Chors (Polska), co zapewnia odpowiednie podkreślenie poszczególnych stref i nadaje wnętrzu
elegancji. Strefa toalet została wykończona płytkami ceramicznymi na ścianach i podłodze. Zastosowano armaturę
firmy GROHE oraz wolnostojące umywalki ceramiczne włoskiego producenta Art Ceram.
Winiarnia wyposażona jest w stalowe regały z drewnianą bazą wykonane na zamówienie, zamknięta
przeszklonymi drzwiami w stalowej ramie. Klimatyzację dedykowaną do zastosowania w chłodniach na wino
zapewnia urządzenie włoskiej firmy ZANOTTI.
Lokal wyposażono w pełną infrastrukturę instalacyjną: system wentylacji mechanicznej nawiewno-wywiewnej z
przygotowaniem pod okap gastronomiczny, klimatyzację, pełne okablowanie elektryczne i sieciowe,
energooszczędne oświetlenie, system alarmowy i monitoring.
Poziom 0 posiada zróżnicowane wykończenie ścian: malowane powierzchnie, fragmenty z odsłoniętą cegłą, tapetę
materiałową oraz panele z lakierowanego MDF w hallu. Parapety wykonano z kamienia naturalnego. Posadzkę
stanowi również kamień naturalny, nadający przestrzeni szlachetny i trwały charakter. Sufit to efektowna
kompozycja podwieszonych belek drewnianych na tle surowego betonu w kolorze czarnym. Oświetlenie jest
dedykowane, o charakterze akustycznym, zapewniającym komfort akustyczny i odpowiednią atmosferę.
Wyposażenie lokalu na poziomie 0 obejmuje m.in.:
• drewnianą komodę barową z blatem kamiennym, wyposażoną w lodówkę na wino, zlew, podejście pod
instalację do piwa oraz duży ekspres kolbowy do kawy. Nad komodą znajdują się stałe półki wiszące na
alkohole;
• tapicerowane meble w różnych konfiguracjach oraz drewniane stoły;
• wylewkę wykończoną płytkami ceramicznymi, z kamiennym blatem i zamontowanymi lampami
grzewczymi.
Poziom 0 mieści także pełnowymiarową, otwartą kuchnię, wyposażoną zgodnie z obowiązującymi normami
sanitarno-technicznymi oraz funkcjonalne zaplecze magazynowo-technologiczne, obsługujące procesy kuchenne.
Przestrzeń została zaplanowana w sposób umożliwiający płynną i ergonomiczną pracę personelu.
Dostęp do lokalu na poziomie 0 zapewniają dwa niezależne wejścia - jedno prowadzące bezpośrednio do
restauracji, drugie do części mieszkalnej. Klatka schodowa prowadząca do tej części wykończona została w
naturalnym kamieniu i uzupełniona kutą, stalową balustradą.
W części piwnicznej zachowano i zakonserwowano oryginalne sklepienia ceglane, które podkreślają unikalny
klimat przestrzeni. Ściany wykończono częściowo odkrytą cegłą i kamieniem oraz tapetą winylową, odporną na
uszkodzenia. Posadzki pokryto płytkami ceramicznymi o wysokiej trwałości.
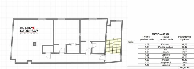
Poziom 1 Lokal mieszkalny nr M1:
Samodzielny lokal mieszkalny nr M1 o powierzchni użytkowej 112 m², położony jest na drugiej kondygnacji (pierwszym
piętrze) stylowego, zadbanego budynku przy ul. Rynek 7, w sercu zabytkowej części miasta. Lokal zajmuje niemal całą
powierzchnię piętra, co gwarantuje mieszkańcom wysoki poziom prywatności, komfort akustyczny oraz wyjątkowe
poczucie przestrzeni. Dzięki dogodnemu układowi i przemyślanej aranżacji wnętrza, nieruchomość spełnia zarówno
funkcje mieszkalne, jak i reprezentacyjne. Na przestrzeń mieszkania składa się obszerny, jasny salon z aneksem
kuchennym - stanowiący centrum życia domowego, idealny zarówno do codziennego wypoczynku, jak i spotkań
towarzyskich. Duże, drewniane okna zapewniają dostęp naturalnego światła, a starannie zaprojektowane oświetlenie
sztuczne - w tym żyrandole z polerowanego szkła - dopełniają wrażenia przytulnej i eleganckiej atmosfery.
Aneks kuchenny został wyposażony w wysokiej klasy zabudowę meblową wykonaną na zamówienie, z blatami
kamiennymi w modnym odcieniu złamanej bieli. Wyposażenie obejmuje m.in.: piekarnik Bosch, płytę indukcyjną Bosch,
zmywarkę Bosch, lodówkę Siemens oraz zlew kamienny. Kuchnia posiada funkcjonalną wyspę również wykończoną
kamieniem. Jadalnia została zaaranżowana ze stołem z kamiennym blatem, wygodnymi krzesłami oraz komodą, tworząc
elegancką przestrzeń do spożywania posiłków. W lokalu znajdują się dwie przestronne sypialnie, każda z własną,
niezależną łazienką wykończoną płytami kamiennymi, z natryskami wydzielonymi szklanymi ściankami. Sypialnie są w
pełni umeblowane - wyposażone w łóżka, szafki nocne z lampkami do czytania oraz zabudowy meblowe na wymiar z
wbudowanymi telewizorami.
Stan techniczny nieruchomości jest bardzo dobry - zarówno elementy wykończeniowe, jak i instalacje, są utrzymywane
w bardzo dobrej kondycji dzięki systematycznej, przemyślanej gospodarce remontowej.
Lokal stanowi kompletnie urządzoną, gotową do zamieszkania przestrzeń o podwyższonym standardzie, idealną zarówno
do celów mieszkaniowych, jak i reprezentacyjnych. Standard wykończenia i wyposażenia uznaje się za wysoki i
spełniający oczekiwania najbardziej wymagających klientów
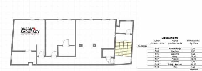
Lokal mieszkalny nr M2:
Samodzielny lokal mieszkalny nr M2 o powierzchni użytkowej 104,4 m², usytuowany jest na poddaszu budynku
przy ul. Rynek 7. Zajmuje niemal całą powierzchnię ostatniej kondygnacji, co zapewnia mu wysoki poziom
prywatności oraz niepowtarzalny charakter. Przestrzeń została funkcjonalnie i estetycznie zaprojektowana -
składa się z przestronnego salonu połączonego z nowoczesnym aneksem kuchennym, dwóch niezależnych
sypialni z prywatnymi łazienkami, dodatkowej łazienki oraz korytarza. Mieszkanie jest w pełni wyposażone i
gotowe do zamieszkania. Lokal został wykończony w wysokim standardzie, z zastosowaniem trwałych i
szlachetnych materiałów. Podłogi wykonano z wysokiej jakości parkietu ułożonego w klasyczną jodełkę, z
eleganckimi opaskami przyściennymi (tzw. bordiury) oraz inkrustacjami z drewnianych listew, co nadaje wnętrzom
wyrafinowanego charakteru. Ściany zostały starannie wygładzone i pokryte wysokiej jakości farbami, a ich
wykończenie uzupełniają listwy przypodłogowe przechodzące w opaski drzwiowe. Drzwi wewnętrzne zostały
zamontowane wraz z głębokimi, drewnianymi szpalerami, całość utrzymana w jasnej, harmonijnej kolorystyce. Na
szczególną uwagę zasługują drzwi wejściowe do mieszkania - wykonane z drewna, o podwyższonej izolacyjności
akustycznej, wykończone naturalnym fornirem z elementami dekoracyjnymi w postaci zmiany kierunku ułożenia
forniru. Z kolei sufity zaprojektowano z wyjątkową dbałością o detale - zastosowano w nich stylowe kasetony,
ozdobne gzymsy oraz zintegrowane oświetlenie LED i ambientowe, podkreślające głębię i nowoczesny klimat
pomieszczeń. Korytarze dodatkowo doświetlono światłem punktowym, umożliwiającym efektowną ekspozycję
obrazów lub grafik.
Mieszkanie wyposażono w kompletną, nowoczesną kuchnię z blatami kamiennymi w modnym odcieniu złamanej
bieli. Zabudowa zawiera sprzęty renomowanych marek: piekarnik, płyta indukcyjna i zmywarka Bosch, lodówka
Siemens, kamienny zlew, a także wyspę kuchenną z kamiennym blatem. Jadalnia została wyposażona w stół z
kamiennym blatem, eleganckie krzesła oraz komodę.
Sypialnie posiadają dedykowaną zabudowę meblową, w tym szafy na wymiar dostosowane do układu ścian oraz
zintegrowane telewizory. Przy łóżkach znajdują się szafki nocne z oświetleniem do czytania. Każda sypialnia
dysponuje własną, luksusową łazienką, wykończoną płytami kamiennymi oraz natryskami oddzielonymi szklanymi
ściankami. Salon urządzono z dbałością o wygodę i styl - znajduje się w nim elegancka sofa, komoda oraz
oświetlenie górne w postaci żyrandoli z polerowanego szkła. Okna w mieszkaniu są drewniane, energooszczędne,
a drzwi wewnętrzne również drewniane, spójne z całością wystroju. Dla zapewnienia komfortu użytkowania
mieszkanie wyposażono w nowoczesną instalację klimatyzacyjną Rotenso we wszystkich pokojach z możliwością
indywidualnego sterowania, a także system rekuperacji. Dodatkowym atutem jest zamek numeryczny VGLock w
drzwiach zewnętrznych, zwiększający bezpieczeństwo i wygodę użytkowników.
Lokal znajduje się w bardzo dobrym stanie technicznym, nie wykazuje oznak zużycia, a regularna i staranna
gospodarka remontowa zapewnia jego pełną gotowość do użytkowania.
Cena całej nieruchomości 4,8 mln zł netto
Możliwość zakupu całości kamienicy bez VAT-u ze stawkę zerową
Istnieje możliwość zakupu całościowo wyposażonej restauracji leżącej na dwóch kondygnacjach w cenie 2,8 mln zł netto .
Umowa na wyłączność
Prezentacja nieruchomości po podpisaniu umowy Pośrednictwa .
Kontakt :
Rafał Duda tel. 507 - pokaż numer telefonu -
Bracia Sadurscy Nieruchomości
|
TECHNOLOGIA BUDOWY
Fundamenty betonowe:
Ściany zewnętrzne fundamentów i piwnic murowane z kamienia ciosanego zalanego betonem
częściowo z cegły. Ściany zewnętrzne murowane z cegły, otynkowane. Klatka schodowa wykończona kamieniem naturalnym w odcieniu ciemnego beżu z użyleniem z jasnego beżu, całość utrzymana przyjemnej ciepłej harmonijnej estetyce. Cokoły klatki z opasek malowanych w kolorze ściany.
Klatka schodowa jasna doświetlona światłem naturalnym poprzez okna połaciowe oraz
okno w ścianie zewnętrznej. Na klatce poza oświetleniem górnym, założone jest oświetlenie dedykowane
schodowe podświetlające bezpośrednio stopnie. Pomiędzy podziemiem a parterem schody o konstrukcji
stalowej pokryte drewnem. Balustrady metalowe z drewnianą poręczą. Sklepienia z cegły. Ogrzewanie w
budynku z sieci miejskiej- eko-term, rozprowadzone do pętli grzewczych w warstwach podłogi.
Klatka schodowa:
− podłoga: płytki ceramiczne
− ściany: tynk, gładzie, powłoki malarskie, elementy ozdobne
Drzwi zewnętrzne :
− drewniane, odrestaurowane
Drzwi wewnętrzne
− Do pomieszczeń mieszkalnych- drewniane, nowe
− Na korytarzach- szklane, szkło mleczne
Stolarka okienna
− drewniana, odrestaurowana
Budynek poddany został remontowi kapitalnemu w 2023r. którego zakres obejmował:
− podbicie fundamentów, wraz z wykonaniem izolacji, przeciwwilgociowej i zabezpieczeniem przed
przenikaniem zarówno wilgoci jak i zimna z zewnątrz,
− dodanie kondygnacji podziemnej,
− wymianę posadzek i warstw posadzkowych, stropów,
− wymianę ocieplenia i pokrycia dachu ,
− dobudowę klatki schodowej,
− budowę nowych pionów wentylacyjnych,
− ocieplenie budynku z zachowaniem wymagań technicznych,
− wymianę całkowitą stolarki okiennej na nową o wysokim standardzie- drewniana z zestawami
dwuszybowymi,
− wymianę drzwi,
− całkowitą wymianę instalacji sanitarnych i elektrycznych,
− zamontowanie instalacji wentylacji, wraz z wentylacją okapu kuchennego,
− wprowadzenia technologii kuchni związanej z restauracją, z zachowaniem ciągów technologicznych,
dostawy, obróbki i magazynowania żywności,
− zamontowanie klimatyzacji na wszystkich poziomach,
− urządzenie winnicy z funkcją utrzymania stałej temperatury,
− realizację wykończenia wnętrz poszczególnych lokali,
::DODATKOWE INFORMACJE |
Nazwa obiektu: Kamienica Rynek |
Prąd: jest |
Woda: jest |
Dojazd: ASFALTOWA |
Otoczenie: centrum miasta |
Ogrzewanie: centralne |
Kanalizacja: miejska |
Internet: TAK |
Komunikacja publ.: autobus miejski |
Odległość do komunikacji publicznej : 20 |
Winda: NIE |
Klimatyzacja: TAK |
Sieć komputerowa: TAK |
Możliwość parkowania: płatne |
Wejście: od ulicy |
Liczba wejść: 2 |
Położenie obiektu: centrum |
Zagosp. działki: zagospodarowana |
Kształt działki: kwadrat |
Rodzaj domu: kamienica |
Stan wybudowania: Pod klucz |
Powierzchnia użytkowa : 483 |
Stan budynku: BARDZO WYSOKI STANDARD |
Rok budowy: 1888 |
Ostatnia modernizacja: 2023 |
Liczba pokoi: 7 |
Liczba kondyg. biurowych: 2 |
Pow. każdej kondyg. : 112 |
::LINK DO STRONY |
sadurscy.pl/offer/BS3-BS-312340
::KONTAKT DO AGENTA |
Rafał Duda |
+48 507 - pokaż numer telefonu - |
@
::DANE BIURA |
Oddział BS3, Przewóz |
Przewóz 47/1 piętro |
31-509 Kraków |
12 429-11-00
Pośrednik odpowiedzialny zawodowo za wykonanie umowy pośrednictwa: Dariusz Sadurski (licencja nr: 803)
--------------------------
::GRATIS | Nasza prowizja zawiera: koszt przedwstępnej notarialnej umowy sprzedaży nieruchomości z rynku wtórnego.
::GWARANCJA | Gwarancja zwrotu zadatku. Więcej informacji na sadurscy.pl/zwrot-zadatku/
|
Oferta wysłana z systemu Galactica Virgo
Numer oferty: BS3-BS-312340
Sprawdź zainteresowanie tym ogłoszeniem
Wyświetlenia
Data dodania
Ostatnio widziany
Obserwujących
Wysłane zapytania
Odsłony telefonu
Powiadom o podobnych ogłoszeniach
Lokalizacja: Żywiec
Kategoria: Nieruchomości » Domy » Sprzedaż
Cena: od 4080000 zł do 5520000 zł Powierzchnia : od 400 m2 do 542 m2
Chcę otrzymywać powiadomienia o nowych ofertach

Konto firmowe
Na Lento.pl od 17 lip 2019
Odpowiada szybko
Strona użytkownika
- Wypromuj ogłoszenie
- Zgłoś naruszenie
- Drukuj ulotkę
- Edytuj/usuń ogłoszenie
- Udostępnij ogłoszenie
- Dodaj na Facebook





























